Unique Collection Dette produkt forhandles i fysiske køkken- og hvidevarebutikker
KULFRI MOTOR
Eftersug - 20 min.
Indikation for filterskift/rengøring Viser et signal når filtre skal rengøres
Vis alle Vis alle
Varenr.: 5803
Phantom 80 N A
by Eico
Kogeplade med integreret emhætte. Med intern motor - Total black glas - 800 mm - A+ - For aftræk
28.495,00 kr.
- Fokuspunkter
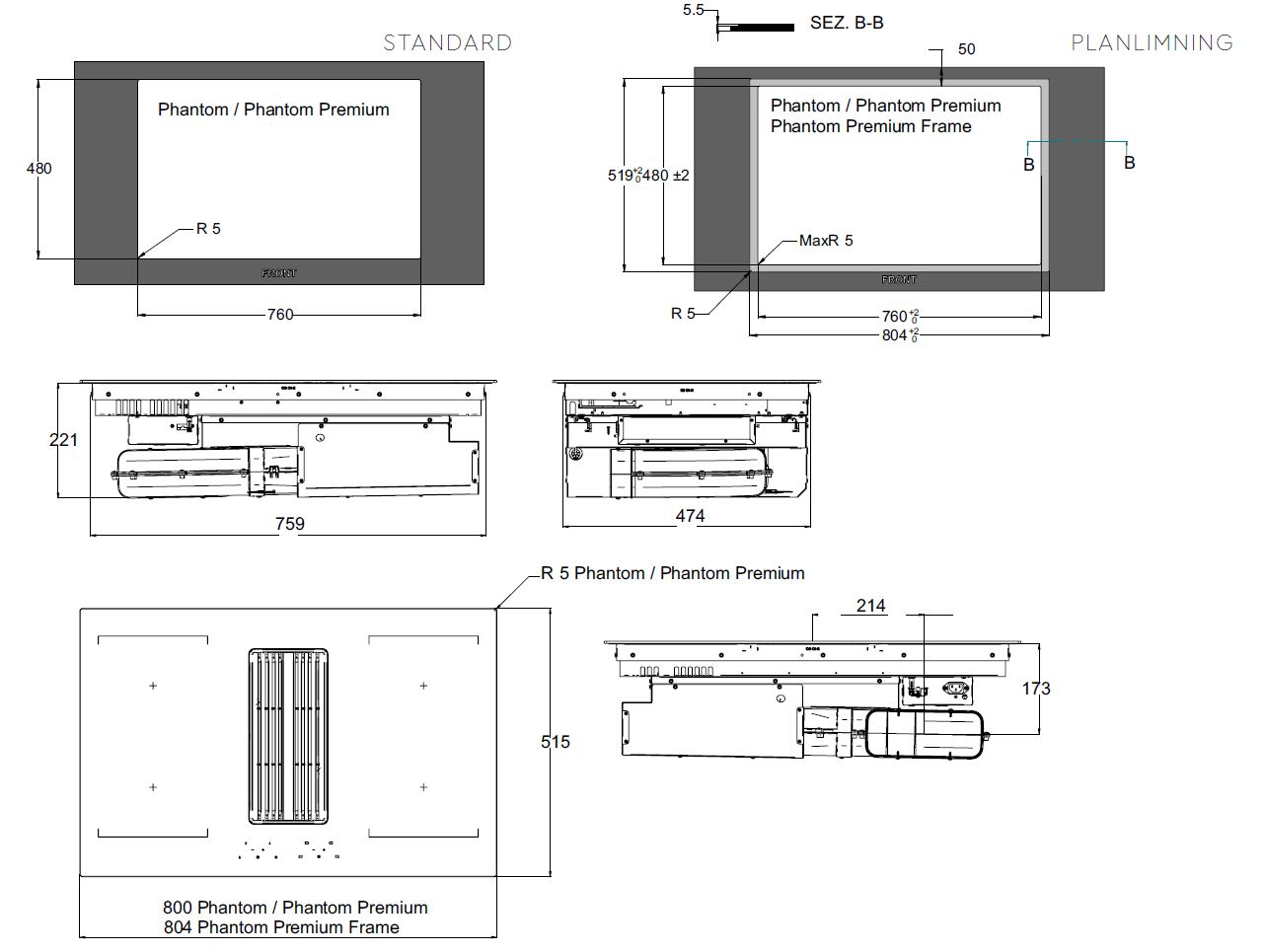
- Produkt (BxDxH) 800 x 515 x 220 mm
- Betjening Touch control
- Antal niveauer 4 trin
- Intensiv trin 2 intensiv trin
- Luftstrøm min-max 230 - 374 m3/t
- Luftstrøm (intensiv) 628 m3/t
- Lydeffekt 47 - 58 dB(A)
- Antal niveauer 4 + 2 intensiv trin
- Betjening (kogeplade) Touch control
- Effekttrin 10 trin
-
- Gode indbygningsmål 760x480 => passer i et 80´er skab uden at der er brug for at skære i kabinettet
- Ydeevne op til 6,2 m/s
- Total black glass => ugennemsigtigt glas, ingen synlig elektronik
- Ekstrem lydsvag og energiklasse A+
















